Penthouse z widokiem na zamek Piastów
Apartament został zaprojektowany w loftowym stylu z dbałością o każdy detal. Wielkie okna zapewniają zapierający dech w piersiach widok, niezależnie od pogody.
Wygląd mieszkania
Galeria
Salon
Łazienka
Inne
Apartament Zamkowy
Informacje
Apartament
Dostępny
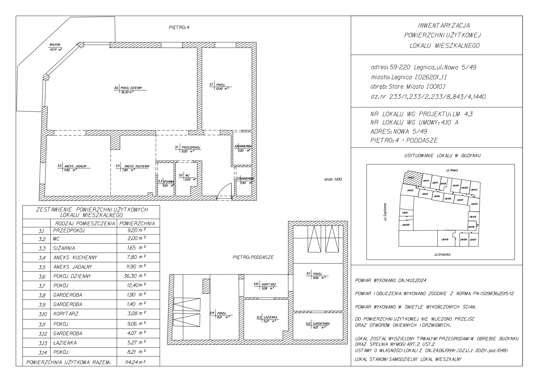
4.10A
Powierzchnia
114.24m2
Pokoje
4
Piętro
4
Balkon
10.16m2
Plan mieszkania
13000 zł/m2

Kontakt















