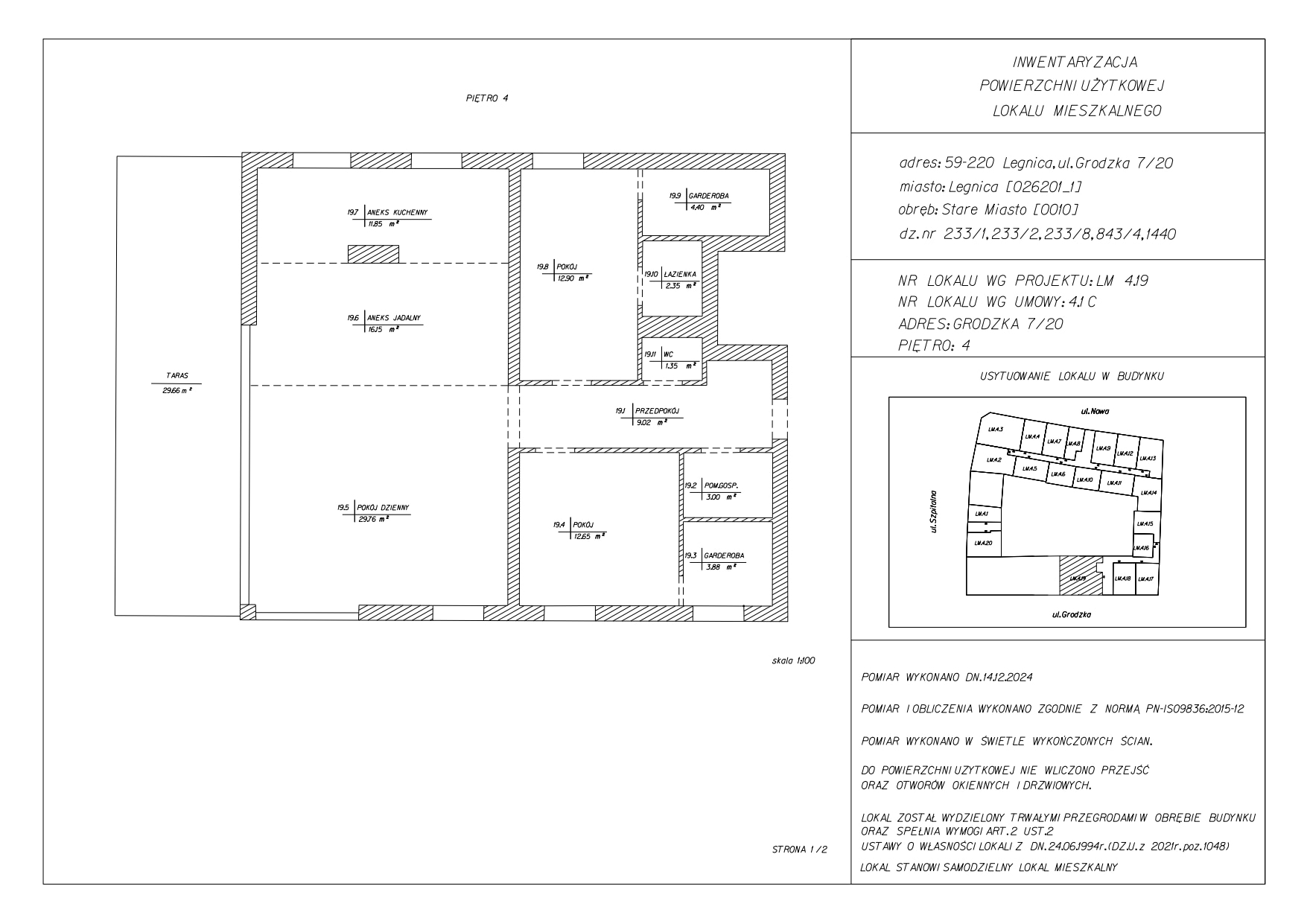
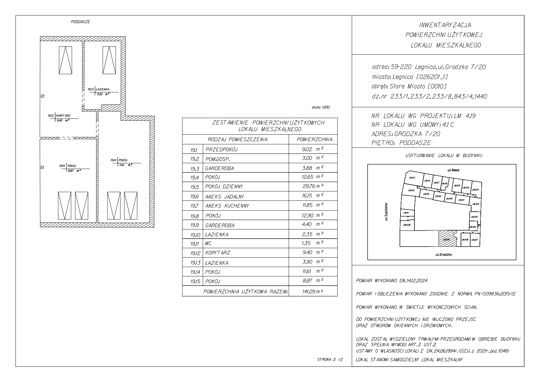
Penthouse z luksusowym tarasem
To największy apartament premium w mieście, o powierzchni 143m2. Posiada taras o powierzchni 30 m2 z widokiem na stare miasto. To Twoja enklawa na 4 i 5 kondygnacji nowoczesnego budynku.
Wygląd mieszkania
Galeria
Salon
Sypialnia i łazienka
Taras
Apartament Tarasowy
Informacje
Apartament
Dostępny
4.1C
Powierzchnia
141.09m2
Pokoje
5
Piętro
4
Taras
30.69m2
Plan mieszkania
13000 zł/m2

Kontakt










